Industrial Park Street, Thompsonville, Michigan

$175,000

Previous Next

5.00

Acres

About Industrial Park Street

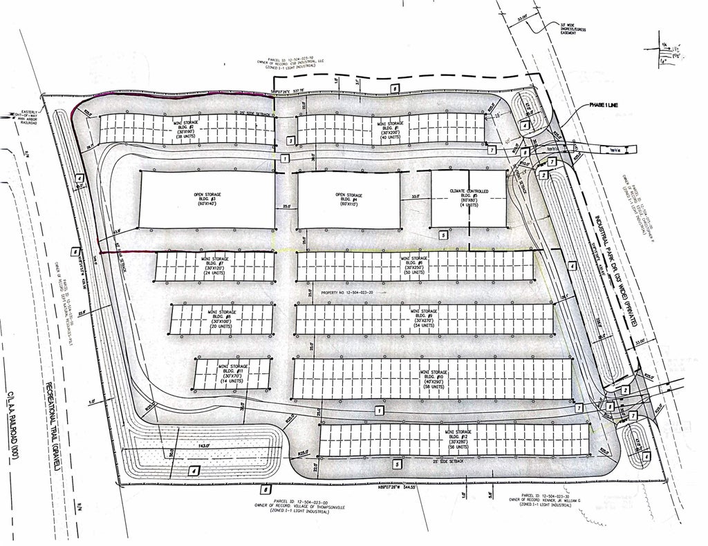
Prime opportunity for investors and developers: this industrial zoned, 5-acre parcel is a fully approved, shovel-ready self-storage development site. All engineered plans, schematics, and municipal approvals convey, with entitlements in place for 358 storage units plus designated open storage. Much of the legwork has been completed, offering significant time and cost savings for a buyer ready to build. The property itself is level and well-suited for construction, ensuring an efficient start to development. A 30 x 48 pole building with fenced area is included and currently leased, providing immediate cash flow during the construction stage—or it can continue as a long-term supplemental income stream. With rising demand for storage facilities, this property combines location, zoning, approvals, and income to present a rare investment opportunity. Whether you proceed with the approved project or adapt it to other light industrial uses, this parcel offers a streamlined path from acquisition to operation.

Features of Industrial Park Street

MLS® # 80062346
Price $175,000
Acres 5.00
Year Built 2026
Type Commercial
Sub-Type Commercial/Industrial
Status Active
Source MLS MiRealSource
Originating MLS Aspire North REALTORS

Community Information

Address Industrial Park Street
Area Thompsonville
City Thompsonville
County Benzie
State Michigan
Zip Code 49683

Interior

Heating None
Cooling None

Exterior

Roof Metal

Additional Information

Zoning Industrial
Foreclosure No
RE / Bank Owned No

Listing Details

OfficeREO-TCBeulah-Frankfort-233027

Listing Map

Request a Showing

Provide a valid email address.
When would you like to view this property?